MAHS

Archaeological Investigation of a Landing Craft Vehicle Personnel (LCVP)

MAHS


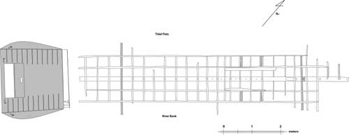
The vessel is of composite construction, with wooden frames and stringers along with several steel frames and a large steel bow ramp, depicted in gray on the left of the drawing below.   The wreckage measured approximately 12.3 meters (40.3 feet) in length from the open bow ramp to the truncated remains of the stern, and 2.5 meters (8.2 feet) in width, as measured between the ends of the complete metal frames (the bow ramp was slightly wider at its widest point, approximately 2.8 meters [9.2 feet]).


hull fragment at low tide

Next   |

MAHS Project List